Скругленные углы

Скругленные углы
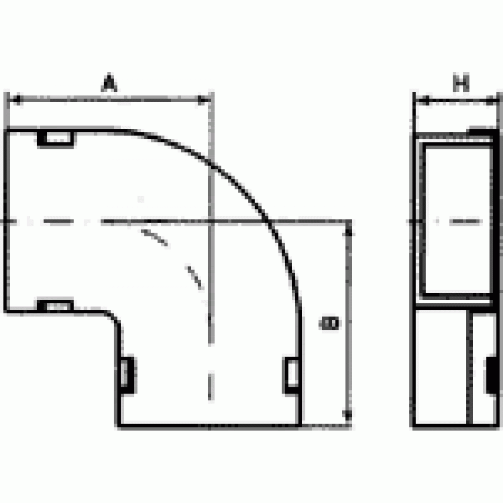
TWT-CTXXxXX-RC-WH

Предназначен для соединения кусков короба на горизонтальной поверхности под углом 90o. Угол обладает заданным радиусом изгиба, исключающим перегибание кабеля при прокладке, что является особенно важным при прокладке оптического кабеля.

Информация для заказа (2)

  • Код товара Код товара / Наименование Наименование Количество
  • TWT-CT39x18-RC-WH
    Скругленный угол 39х18
  • TWT-CT24x14-RC-WH
    Скругленный угол 24х14
Описания продукции приведены согласно имеющейся информации на момент публикации. Характеристики продукции могут быть изменены без предварительного уведомления. Более подробную и точную информацию можно получить у официальных партнеров и дистрибьюторов LANMASTER.